Plum has rescheduled a hearing related to the construction of a new Dollar General store in the borough.
The Zoning Hearing Board will consider a request for a variance from parking requirements when it meets at 7 p.m. Feb. 8 at the municipal center, 2000 Old Mine Road.
The hearing, previously scheduled for Jan. 11, had been canceled. Borough Manager Michael Thomas said the cancellation was caused by the board’s solicitor having Dollar General as a client, creating a conflict of interest and the need to find another attorney.
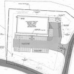
The 10,640-square-foot store is proposed to be built on 2 acres of vacant land along Saltsburg Road at Clements Road. PTV 1298 LLC has a sales agreement for the land, which is zoned for neighborhood commercial.
They are asking the borough to allow the store to have 35 parking spaces, which is 19 less than the 54 the borough requires.
In correspondence to the borough, Dollar General argues it has found that 35 spaces would be enough to accommodate customer traffic, even during peak holiday seasons.
If built, it would be the third Dollar General in Plum. The other stores are at 960 Unity Center Road and 2409 Route 286.
Dollar General has more than 18,000 stores. In announcing its third quarter 2022 results in December, the company said it plans to open about 1,050 new stores in its 2023 fiscal year.
The application and plans for the new location in Plum are available for review at the municipal center during normal business hours.





