Valley News Dispatch

Another Dollar General store could be on the way in Plum

Brian C. Rittmeyer
By Brian C. Rittmeyer
2 Min Read Jan. 6, 2023 | 3 years ago
Go Ad-Free today
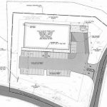
Dollar General is considering opening a third store in Plum. The store would be built on vacant land along Saltsburg Road at Clements Road. The borough’s Zoning Hearing Board was scheduled to hold a hearing relating to parking spaces at 7 p.m. Wednesday at the municipal center, 2000 Old Mine Road. That meeting has been canceled, assistant borough Manager David Soboslay said Tuesday. The board is now scheduled to hold the hearing at the same time and place on Feb. 8. The board will consider a request from PTV 1298 LLC, which has a sales agreement on the land, to allow the store to have 35 parking spaces, 19 less than the 54 the borough requires. Sarah James Myatt, architecture and engineering manager for Dollar General, wrote in a letter to the Zoning Hearing Board that 35 spaces will be enough to accommodate customers based on its stores averaging 15 to 20 transactions per hour. “This standard has also been sufficient for traffic generated at the peak of Christmas season levels,” she wrote. Built on about 2 acres, the store would be a total of 10,640 square feet with about 8,500 square feet of sales area, according to plans submitted to the borough. The entrance and exit would be off Clements Road. The property is zoned for neighborhood commercial. A representative of Dollar General’s corporate communications said the company is in the “due diligence phase” for a new location in Plum. This means we are reviewing the opportunity to add a new store in Allegheny County, but we have not committed to doing so just yet,” the company said in an email response. “Based on our current timeline, we anticipate having a final decision by spring 2023.” Dollar General has two stores in Plum. They are at 960 Unity Center Road and 2409 Route 286. Headquartered in Goodletsville, Tenn., Dollar General has more than 18,000 stores in 47 states, according to its website. In the December announcement of Dollar General’s third-quarter 2022 results, Chief Executive Officer Jeff Owen said the company plans to execute about 3,170 real estate projects in the U.S. in its 2023 fiscal year, including about 1,050 new stores. The company’s 52-week 2023 fiscal year will end Feb. 2, 2024. “We are excited about our plans to extend our ability to serve more customers and believe we are well-positioned to continue delivering long-term sustainable growth and value for our shareholders,” Owen said. Editor’s note: This story was updated on Tuesday, Jan. 10, 2023 to reflect the cancellation of the previously scheduled Zoning Hearing Board meeting.

Share

About the Writer

Brian C. Rittmeyer, a Pittsburgh native and graduate of Penn State University's Schreyer Honors College, has been with the Trib since December 2000. He can be reached at brittmeyer@triblive.com.

Push Notifications

Get news alerts first, right in your browser.

Enable Notifications

Content you may have missed

Enjoy TribLIVE, Uninterrupted.

Support our journalism and get an ad-free experience on all your devices.

  • TribLIVE AdFree Monthly

    • Unlimited ad-free articles
    • Pay just $4.99 for your first month
  • TribLIVE AdFree Annually BEST VALUE

    • Unlimited ad-free articles
    • Billed annually, $49.99 for the first year
    • Save 50% on your first year
Get Ad-Free Access Now View other subscription options